4033:新築戸建 GRAFARE八王子台町6期 2号棟
価格 | 4,080万円 |
---|---|
所在地 | 八王子市台町3丁目 |
交通 | 中央線 西八王子駅まで 徒歩14分 |
小児科 | 富士森内科クリニックまで 徒歩6分 400m |
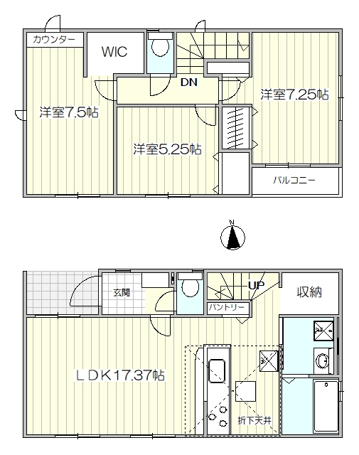
間取 | 3LDK |
土地面積 | 88.04m²(26.63坪) |
建物面積 | 90.04m²(27.23坪) |
私道面積 | - |
築年月 | 2026/01 |
学区 | 小学校区:第七小学校 560m 中学校区:第七中学校 720m |
建物構造 | 木造 |
---|---|
階建 | 地上2階建 |
建ぺい率 | 60% |
容積率 | 200% |
地目 | 宅地 |
用途地域 | 第一種中高層住居専用地域 |
土地権利 | 所有権 |
取引態様 | 仲介 |
引渡時期 | 相談 |
セットバック | |
---|---|
接道 | 北 6m(幅員) 公道 位置指定無 2.95m(接面) |
諸費用 | 購入価格の8%程度(初期費用) |
他法条例 | |
建築確認番号 | TKK確済25-373号 |
取引条件有効期限 | 令和07年10月28日 |
特色
地盤20年保証、建物最長35年保証、住宅性能表示制度対応住宅、設計性能評価書、建設性能評価書、外壁サイディング貼り、耐震住宅(耐震等級3取得)、システムキッチン、カウンターキッチン、床下収納、パントリー、温水洗浄付便座、独立洗面台、室内洗濯機置場、浴室暖房乾燥機、1坪サイズバス、追い焚き機能、リビングイン階段、LDK15帖以上、フローリング、クローゼット、ウォークインクローゼット、シューズボックス、全居室ペアガラス、バルコニー、駐車場、公営水道、公共本下水、都市ガス、司法書士売主指定、土地家屋調査士売主指定
コメント
【八王子市台町3丁目 新築戸建 3LDK】
【セールスポイント】
☆次世代につなげるZEH水準仕様・太陽光パネル設置物件
☆地盤20年保証・建物最長35年保証
☆住宅性能表示制度において7項目最高等級取得予定
☆本地は八王子市洪水ハザードマップで浸水想定区域に指定されていません
【チェックポイント】
★最寄り駅から本地までに登り坂のルートがありますので電動アシスト自転車などがあると便利です
【周辺環境】
コンビニ『セブンイレブン八王子富士森公園北店』まで約110m(徒歩約2分)
ドラッグストア『クリエイトS・D八王子台町店』まで約270m(徒歩約4分)
スーパー『スーパーアルプス台町店』まで約170m(徒歩約3分)
保育園『八王子ふたば保育園』まで約570m(徒歩約8分)
小学校『八王子市立第七小学校』まで約560m(徒歩約7分)
中学校『八王子市立第七中学校』まで約720m(徒歩約9分)
周辺地図
位置情報に関するご注意:現在位置情報は精査中の為、正確ではない場合があります。あくまで参考程度の情報となります。