Bk3742 |
八王子市散田町4丁目 |
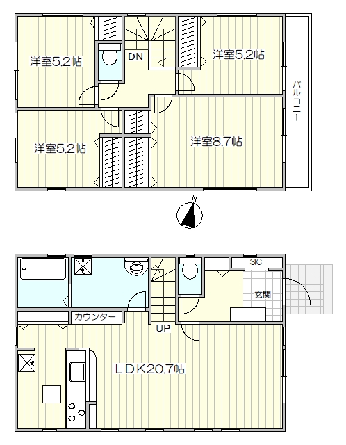
3,890万円 |
− 16分 |
108.29m2 86.12m2 |
3LDK 木造 |
R07/06
 相談 |
|
  
|
【八王子市散田町4丁目 新築戸建 3LDK】
【セールスポイント】 ☆耐震等級3+制震住宅 ☆設計+建設住宅性能表示・長期優良住宅 ☆BELS省エネ・太陽光発電・NURO光(ご利用条件あり)
【ウィークポイント】 ★本地は八王子市洪水ハザードマップで敷地の一部が0.5m未満浸水想定区域に指定されています ★本地は道路面から高台になっています
【周辺環境】 コンビニ『ローソン八王子散田町4丁目店』まで約400m(徒歩約6分) ドラッグストア『スギ薬局八王子散田町店』まで約300m(徒歩約5分) スーパー『スーパーアルプス西八王子駅前店』まで約1,000m(徒歩約15分) 保育園『たんぽぽ保育園』まで約300m(徒歩約5分) 指定小学校『八王子市立散田小学校』まで約600m(徒歩約9分) 許可校『八王子市立山田小学校』まで約550m(徒歩約8分) 中学校『八王子市立横山中学校』まで約550m(徒歩約8分) |
Bk3741 |
八王子市散田町4丁目 |
4,230万円 |
− 16分 |
110.47m2 87.76m2 |
3LDK 木造 |
R07/06
 相談 |
|
  
|
【八王子市散田町4丁目 新築戸建 3LDK】
【セールスポイント】 ☆耐震等級3+制震住宅 ☆設計+建設住宅性能表示・長期優良住宅 ☆BELS省エネ・太陽光発電・NURO光(ご利用条件あり)
【ウィークポイント】 ★本地は八王子市洪水ハザードマップで敷地の一部が0.5m未満浸水想定区域に指定されています ★本地は道路面から高台になっています
【周辺環境】 コンビニ『ローソン八王子散田町4丁目店』まで約400m(徒歩約6分) ドラッグストア『スギ薬局八王子散田町店』まで約300m(徒歩約5分) スーパー『スーパーアルプス西八王子駅前店』まで約1,000m(徒歩約15分) 保育園『たんぽぽ保育園』まで約300m(徒歩約5分) 指定小学校『八王子市立散田小学校』まで約600m(徒歩約9分) 許可校『八王子市立山田小学校』まで約550m(徒歩約8分) 中学校『八王子市立横山中学校』まで約550m(徒歩約8分) |
Bk3759 |
八王子市並木町 |
4,280万円 |
− 14分 |
99.37m2 101.58m2 |
4LDK 木造 |
R07/12
 相談 |
|
  
|
【八王子市並木町 新築戸建 4LDK】
【セールスポイント】 ☆制震ダンパー『MAMORY』採用・外壁モルタル左官仕上げ・網戸全窓標準 ☆アルミ樹脂複合サッシ・断熱性能等級5・一次エネルギー等級6 ☆本地は八王子市洪水ハザードマップで浸水想定区域に指定されていません
【ウィークポイント】 ★南側隣地は中央線線路になり騒音・振動等を感じる場合がありますのでご内見時にご確認ください
【周辺環境】 コンビニ『ローソン八王子長房町店』まで約450m(徒歩約7分) ドラッグストア『スギ薬局八王子散田町店』まで約300m(徒歩約5分) スーパー『ヤオコー八王子並木町店』まで約450m(徒歩約6分) 保育園『たんぽぽ保育園』まで約450m(徒歩約7分) 小学校『八王子市立横山第二小学校』まで約300m(徒歩約5分) 中学校『八王子市立横山中学校』まで約550m(徒歩約8分) |
Bk3858 |
八王子市中野上町4丁目 |
2,299万円 |
− 19分 |
100.47m2 84.48m2 |
4LDK 木造 |
H08/11 相談 |
|
 
|
【八王子市中野上町4丁目 中古戸建 4LDK】
【セールスポイント】 ☆室内リフォーム後引き渡し(2025年10月完了予定) ☆お引渡しから2年間の契約不適合責任あり ☆浅川河川敷まで約70m(徒歩約1分)四季折々の景色や桜並木もきれいに見れますよ
【ウィークポイント】 ★本地は八王子市洪水ハザードマップにおいて0.5m未満及び1.0〜3.0m浸水想定茎に指定されています
【周辺環境】 コンビニ『ファミリーマート中野中央通り店』まで約600m(徒歩約8分) ドラッグストア『クリエイトS・D八王子元本郷町店』まで約500m(徒歩約7分) スーパー『スーパーアルプス中野店』まで約1,200m(徒歩約16分) 保育園『多賀保育園』まで約750m(徒歩約11分) 指定小学校『八王子市立第九小学校』まで約1,000m(徒歩約14分) 許可校『八王子市立楢原小学校』まで約1,200m(徒歩約16分) 中学校『八王子市立第二中学校』まで約210m(徒歩約3分) |
Bk3898 |
八王子市散田町5丁目 |
2,999万円 |
− 20分 |
130.58m2 94.81m2 |
4SLDK 木造 |
H13/07 相談 |
|
 
|
【八王子市散田町5丁目 中古戸建 4SLDK】
【セールスポイント】 ☆万葉公園まで徒歩約1分・散田小学校まで徒歩約5分・京王ストアめじろ台店まで徒歩約10分とアクセス良好です ☆全居室6帖以上の広々した間取り ☆本地は八王子市洪水ハザードマップで浸水想定区域に指定されていません
【ウィークポイント】 ★最寄り駅から本地まで登り坂がありますので電動アシスト自転車などがあると便利です
【周辺環境】 コンビニ『セブンイレブン八王子散田町5丁目店』まで約350m(徒歩約5分) ドラッグストア『スギ薬局八王子散田町店』まで約500m(徒歩約8分) スーパー『京王ストアめじろ台店』まで約800m(徒歩約10分) 保育園『敬愛保育園』まで約160m(徒歩約2分) 小学校『八王子市立散田小学校』まで約400m(徒歩約5分) 中学校『八王子市立横山中学校』まで約430m(徒歩約6分) |
Bk3910 |
八王子市長房町 |
3,499万円 |
− 20分 |
200.02m2 94.19m2 |
3LDK 木造 |
R07/12
 相談 |
|
  
|
【八王子市長房町 新築戸建 3LDK】
【セールスポイント】 ☆ZEH水準使用・主要7項目最高等級取得・長期優良住宅(減税・控除) ☆ゆとりの敷地52.8坪以上・カースペース2台可(車種による) ☆スーパー・ドラッグストア・ホームセンターまで徒歩5分以内買い物便利 ☆本地は八王子市洪水ハザードマップにおいて浸水想定区域に指定されていません
【ウィークポイント】 ★1号棟北側隣地・東側道路から本地に高低差・擁壁あり
【周辺環境】 コンビニ『ファミリーマート八王子並木町店』まで約750m(徒歩約11分) ドラッグストア『クリエイトS・Dコピオ長房店』まで約350m(徒歩約5分) スーパー『スーパーアルプス長房店』まで約350m(徒歩約5分) ホームセンター『カインズ八王子長房店』まで約350m(徒歩約5分) 保育園『長房みなみ保育園』まで約300m(徒歩約4分) 小学校『八王子市立長房小学校』まで約240m(徒歩約3分) 中学校『八王子市立長房中学校』まで約880m(徒歩約11分) |
Bk3911 |
八王子市長房町 |
3,499万円 |
− 20分 |
174.58m2 99.36m2 |
4LDK 木造 |
R07/12
 相談 |
|
  
|
【八王子市長房町 新築戸建 4LDK】
【セールスポイント】 ☆ZEH水準使用・主要7項目最高等級取得・長期優良住宅(減税・控除) ☆ゆとりの敷地52.8坪以上・カースペース2台可(車種による) ☆スーパー・ドラッグストア・ホームセンターまで徒歩5分以内買い物便利 ☆本地は八王子市洪水ハザードマップにおいて浸水想定区域に指定されていません
【ウィークポイント】 ★1号棟北側隣地・東側道路から本地に高低差・擁壁あり
【周辺環境】 コンビニ『ファミリーマート八王子並木町店』まで約750m(徒歩約11分) ドラッグストア『クリエイトS・Dコピオ長房店』まで約350m(徒歩約5分) スーパー『スーパーアルプス長房店』まで約350m(徒歩約5分) ホームセンター『カインズ八王子長房店』まで約350m(徒歩約5分) 保育園『長房みなみ保育園』まで約300m(徒歩約4分) 小学校『八王子市立長房小学校』まで約240m(徒歩約3分) 中学校『八王子市立長房中学校』まで約880m(徒歩約11分) |
Bk3917 |
八王子市散田町2丁目 |
3,780万円 |
− 13分 |
100.53m2 78.66m2 |
3LDK 木造 |
R07/12
 相談 |
|
  
|
【八王子市散田町2丁目 新築戸建 3LDK】
【セールスポイント】 ☆子育てグリーン住宅(補助金)対象物件(詳細要確認) ☆耐震等級3(最高等級)・断熱等級6取得(省エネ) ☆本地は八王子市洪水ハザードマップにおいて浸水想定区域に指定されていません
【ウィークポイント】 ★最寄り駅から本地までに登り坂がありますので電動アシスト自転車などがあると便利です
【周辺環境】 コンビニ『セブンイレブン八王子散田町1丁目店』まで約750m(徒歩約10分) ドラッグストア『クリエイトS・D八王子台町店』まで約700m(徒歩約9分) スーパー『業務スーパー西八王子店』まで約650m(徒歩約9分) 保育園『山田保育園』まで約400m(徒歩約6分) 小学校『八王子市立山田小学校』まで約400m(徒歩約5分) 中学校『八王子市立第七中学校』まで約300m(徒歩約4分) |
Bk3918 |
八王子市散田町2丁目 |
3,780万円 |
− 13分 |
100.53m2 79.9m2 |
3LDK 木造 |
R07/12
 相談 |
|
  
|
【八王子市散田町2丁目 新築戸建 3LDK】
【セールスポイント】 ☆子育てグリーン住宅(補助金)対象物件(詳細要確認) ☆耐震等級3(最高等級)・断熱等級6取得(省エネ) ☆本地は八王子市洪水ハザードマップにおいて浸水想定区域に指定されていません
【ウィークポイント】 ★最寄り駅から本地までに登り坂がありますので電動アシスト自転車などがあると便利です
【周辺環境】 コンビニ『セブンイレブン八王子散田町1丁目店』まで約750m(徒歩約10分) ドラッグストア『クリエイトS・D八王子台町店』まで約700m(徒歩約9分) スーパー『業務スーパー西八王子店』まで約650m(徒歩約9分) 保育園『山田保育園』まで約400m(徒歩約6分) 小学校『八王子市立山田小学校』まで約400m(徒歩約5分) 中学校『八王子市立第七中学校』まで約300m(徒歩約4分) |
Bk3952 |
八王子市長房町 |
4,399万円 |
− 19分 |
130.64m2 103.92m2 |
4LDK 木造 |
R08/01
 相談 |
|
  
|
【八王子市長房町 新築戸建 4LDK】
【セールスポイント】 ☆建物は売主オリジナルプラン・安心の売主自社施工 ☆開発現場の整った区画でゆとりある4LDKの間取りです ☆ZEH水準省エネ住宅
【チェックポイント】 ★本地の一部と前面道路が八王子市洪水ハザードマップで0.5m未満浸水想定区域に指定されています ★本地と接道道路に高低差があります
【周辺環境】 コンビニ『ファミリーマート八王子並木町店』まで約750m(徒歩約11分) ドラッグストア『クリエイトS・Dコピオ長房店』まで約500m(徒歩約7分) スーパー『スーパーアルプス長房店』まで約500m(徒歩約7分) 保育園『長房みなみ保育園』まで約360m(徒歩約5分) 小学校『八王子市立長房小学校』まで約260m(徒歩約4分) 中学校『八王子市立長房中学校』まで約1,200m(徒歩約15分) |
Bk3951 |
八王子市長房町 |
4,499万円 |
− 19分 |
141.51m2 107.64m2 |
4LDK 木造 |
R08/01
 相談 |
|
  
|
【八王子市長房町 新築戸建 4LDK】
【セールスポイント】 ☆建物は売主オリジナルプラン・安心の売主自社施工 ☆開発現場の整った区画でゆとりある4LDKの間取りです ☆ZEH水準省エネ住宅
【チェックポイント】 ★本地の一部と前面道路が八王子市洪水ハザードマップで0.5m未満浸水想定区域に指定されています ★本地と接道道路に高低差があります
【周辺環境】 コンビニ『ファミリーマート八王子並木町店』まで約750m(徒歩約11分) ドラッグストア『クリエイトS・Dコピオ長房店』まで約500m(徒歩約7分) スーパー『スーパーアルプス長房店』まで約500m(徒歩約7分) 保育園『長房みなみ保育園』まで約360m(徒歩約5分) 小学校『八王子市立長房小学校』まで約260m(徒歩約4分) 中学校『八王子市立長房中学校』まで約1,200m(徒歩約15分) |
Bk3997 |
八王子市散田町2丁目 |
3,890万円 |
− 13分 |
101.05m2 80.72m2 |
3LDK 木造 |
R07/12
 相談 |
|
  
|
【八王子市散田町2丁目 新築戸建 3LDK】
【セールスポイント】 ☆住宅購入支援金子育てグリーン住宅支援事業(詳細要確認) ☆設計住宅性能評価書取得済み・建設住宅性能評価書取得予定 ☆耐震等級最高等級取得・自身に強い家 ☆本地は八王子市洪水ハザードマップで浸水想定区域に指定されていません
【チェックポイント】 ★最寄り駅から本地までに登り坂があるので電動アシスト自転車などがあると便利です
【周辺環境】 コンビニ『セブンイレブン八王子散田1丁目店』まで約800m(徒歩約12分) ドラッグストア『クリエイトS・D八王子台町店』まで約750m(徒歩約12分) スーパー『業務スーパー西八王子店』まで約700m(徒歩約12分) 保育園『山田保育園』まで約400m(徒歩約6分) 小学校『八王子市立山田小学校』まで約350m(徒歩約5分) 指定校『八王子市立第七中学校』まで約350m(徒歩約5分) 許可校『八王子市立横山中学校』まで約1,200m(徒歩約17分) |
Bk3998 |
八王子市散田町2丁目 |
4,090万円 |
− 13分 |
102.66m2 81.35m2 |
3LDK 木造 |
R07/12
 相談 |
|
  
|
【八王子市散田町2丁目 新築戸建 3LDK】
【セールスポイント】 ☆住宅購入支援金子育てグリーン住宅支援事業(詳細要確認) ☆設計住宅性能評価書取得済み・建設住宅性能評価書取得予定 ☆耐震等級最高等級取得・自身に強い家 ☆本地は八王子市洪水ハザードマップで浸水想定区域に指定されていません
【チェックポイント】 ★最寄り駅から本地までに登り坂があるので電動アシスト自転車などがあると便利です
【周辺環境】 コンビニ『セブンイレブン八王子散田1丁目店』まで約800m(徒歩約12分) ドラッグストア『クリエイトS・D八王子台町店』まで約750m(徒歩約12分) スーパー『業務スーパー西八王子店』まで約700m(徒歩約12分) 保育園『山田保育園』まで約400m(徒歩約6分) 小学校『八王子市立山田小学校』まで約350m(徒歩約5分) 指定校『八王子市立第七中学校』まで約350m(徒歩約5分) 許可校『八王子市立横山中学校』まで約1,200m(徒歩約17分) |