価格 |
6,490万円 |
||
|---|---|---|---|
間取 |
4LDK |
築年月 |
2026/04(建築予定) |
建物面積 |
119.23m²(36.06坪) |
土地面積 |
76.68m²(23.19坪) |
所在地 |
八王子市万町 |
||
交通 |
中央線八王子駅まで 徒歩10分
京王線京王八王子駅まで 徒歩20分
横浜線八王子駅まで 徒歩10分 |
お電話でのお問い合わせ
物件番号:4226
お電話でお問い合わせの際は、物件番号をお伝えください。
042-625-6446
営業時間:10:00 ~18:00
定休日:水曜日
ポイント
POINT
【八王子市万町 新築戸建 4LDK】
【セールスポイント】
☆JR八王子駅南口徒歩10分で平坦なエリアで南西角地と南道路の2区画新築戸建です
☆学区小中学校までそれぞれ徒歩2分とお子様には特に好立地です
☆南向きのリビング18帖超で広々してますね
【チェックポイント】★八王子市洪水ハザードマップによると本地一部及び西側道路に0.5m未満浸水想定区域が指定されています
【周辺環境】
コンビニ『ファミリーマート八王子万町店』まで約250m(徒歩約3分)
ドラッグストア『クリエイトS・D八王子万町店』まで約300m(徒歩約5分)
スーパー『スーパーアルプス八王子駅南口店』まで約650m(徒歩約10分)
保育園『よろず保育園』まで約400m(徒歩約6分)
小学校『八王子市立第三小学校』まで約130m(徒歩約2分)
中学校『八王子市立第六中学校』約150m(徒歩約2分)
【セールスポイント】
☆JR八王子駅南口徒歩10分で平坦なエリアで南西角地と南道路の2区画新築戸建です
☆学区小中学校までそれぞれ徒歩2分とお子様には特に好立地です
☆南向きのリビング18帖超で広々してますね
【チェックポイント】★八王子市洪水ハザードマップによると本地一部及び西側道路に0.5m未満浸水想定区域が指定されています
【周辺環境】
コンビニ『ファミリーマート八王子万町店』まで約250m(徒歩約3分)
ドラッグストア『クリエイトS・D八王子万町店』まで約300m(徒歩約5分)
スーパー『スーパーアルプス八王子駅南口店』まで約650m(徒歩約10分)
保育園『よろず保育園』まで約400m(徒歩約6分)
小学校『八王子市立第三小学校』まで約130m(徒歩約2分)
中学校『八王子市立第六中学校』約150m(徒歩約2分)
物件詳細DETAIL
建物構造 |
木造 |
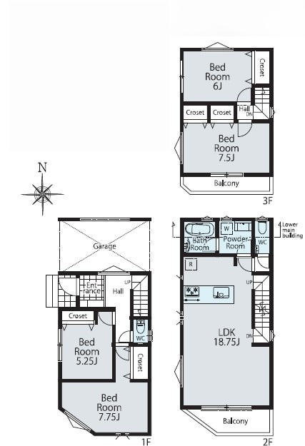
間取詳細 |
(1F)洋5.25、(1F)洋7.75、(2F)LDK18.75、(3F)洋6、(3F)洋7.5 |
|---|---|---|---|
建ぺい率 |
80% |
容積率 |
200% |
地目 |
宅地 |
用途地域 |
近隣商業地域 |
取引態様 |
仲介 |
私道面積 |
- |
引渡時期 |
相談 |
土地権利 |
所有権 |
借地料 |
- |
借地期間 |
- |
セットバック |
建築確認番号 |
第25UDI1S建03382号 |
|
接道 |
西 6m(幅員) 公道 10.41m(接面)
南 5m(幅員) 私道 6.9m(接面) |
諸費用 |
購入価格の8%程度(初期費用) - |
周辺環境 |
ノアこどもクリニックまで 徒歩5分 300m |
学区 |
第三小学校 130m
第六中学校 150m |
特色/設備 |
システムキッチン、浄水器一体シャワー水栓、食器洗浄乾燥機、TVモニターホン、ウォシュレット、独立洗面台、室内洗濯機置場、浴室暖房乾燥機、1坪サイズバス、追い焚き機能、リビングイン階段、LDK15帖以上、フローリング、クローゼット、シューズボックス、バルコニー、LED照明(一部)、宅配ボックス、駐車場、角地、南道路、公営水道、公共本下水、都市ガス、司法書士売主指定、土地家屋調査士売主指定 |
||
情報更新日 |
2026年03月23日 |
次回更新予定日 |
2026年03月24日 |
取引条件有効期限 |
2026年03月30日 |
※掲載されている物件データが現状と異なる場合は現状を優先します。
周辺地図MAP
ローンシミュレーション
LOAN SIMULATION
- 物件の価格
- 6,490万円
- 月々の返済額
- 円
- 年間の返済額
- 円
- 返済総額
- 円
- 利息合計
- 円
万円
%
年
※毎回の返済額が開始から終了まで均等となる「元利均等返済」で算出しています。
※金利は期間中固定となる固定金利を採用しています。
※月々の返済額は小数点以下を繰り上げしています。
※シミュレーションでの結果は、あくまでも目安で、概算になります。実際にローン契約をする際は、詳細を金融機関にご確認ください。
※実際のローン契約時には諸費用・税金(手数料や印紙税、保証料など)が別途かかりますので、契約の際にご確認ください。
株式会社Room’s BarCOMPANY
所在地 |
東京都八王子市子安町4-27-12 山上ビル103 |
||
|---|---|---|---|
免許番号 |
東京都知事免許(3)第93444号 |
||
会員 |
(公社)全日本不動産協会
(公社)不動産保証協会
|
||
電話番号 |
042-625-6446 |
FAX番号 |
042-625-6797 |
営業時間 |
10:00 ~18:00 |
定休日 |
水曜日 |

