価格 |
4,190万円 |
||
|---|---|---|---|
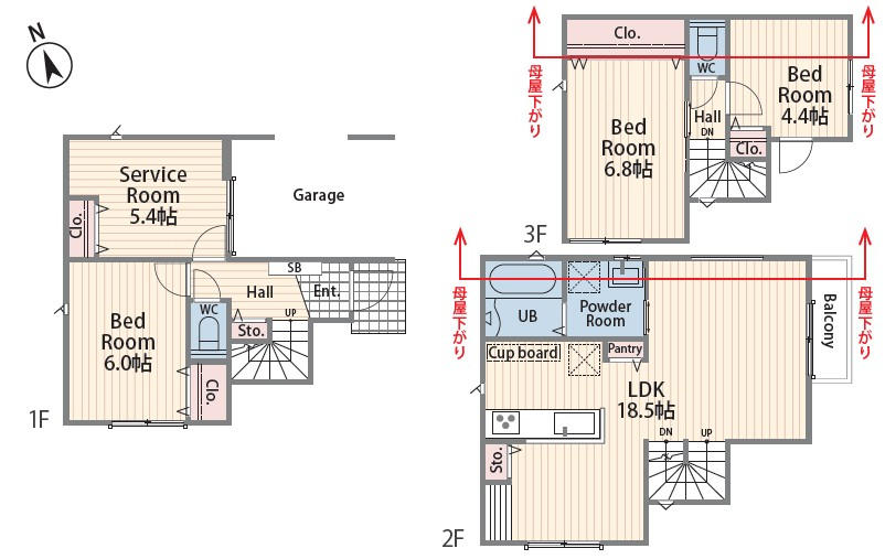
間取 |
3LDK+S |
築年月 |
2026/04(建築予定) |
建物面積 |
108.46m²(32.8坪) |
土地面積 |
70.28m²(21.25坪) |
所在地 |
八王子市大和田町3丁目 |
||
交通 |
京王線京王八王子駅まで 徒歩13分
中央線八王子駅まで 徒歩18分
横浜線八王子駅まで 徒歩18分 |
お電話でのお問い合わせ
物件番号:4162
お電話でお問い合わせの際は、物件番号をお伝えください。
042-625-6446
営業時間:10:00 ~18:00
定休日:水曜日
ポイント
POINT
【八王子市大和田町3丁目 新築戸建 .3SLDK】
【セールスポイント】
☆ZEH水準省エネルギーハウス
☆シロアリ5年保証
☆全蛇口に対応する浄水装置・ミラブルzero・ミラバス搭載物件
【チェックポイント】
★本地は八王子市洪水ハザードマップで1.0~3.0m浸水想定区域に指定されています
【周辺環境】
コンビニ『ファミリーマート八王子大和田5丁目店』まで約328m(徒歩約5分)
ドラッグストア『サンドラッグフォレストモール八王子大和田店』まで約548m(徒歩約7分)
スーパー『スーパーアルプス大和田店』まで約548m(徒歩約7分)
保育園『愛光大和田保育園』まで約259m(徒歩約4分)
小学校『八王子市立第十小学校』まで約1,100m(徒歩約14分)
中学校『八王子市立第一中学校』まで約1,500m(徒歩約19分)
【セールスポイント】
☆ZEH水準省エネルギーハウス
☆シロアリ5年保証
☆全蛇口に対応する浄水装置・ミラブルzero・ミラバス搭載物件
【チェックポイント】
★本地は八王子市洪水ハザードマップで1.0~3.0m浸水想定区域に指定されています
【周辺環境】
コンビニ『ファミリーマート八王子大和田5丁目店』まで約328m(徒歩約5分)
ドラッグストア『サンドラッグフォレストモール八王子大和田店』まで約548m(徒歩約7分)
スーパー『スーパーアルプス大和田店』まで約548m(徒歩約7分)
保育園『愛光大和田保育園』まで約259m(徒歩約4分)
小学校『八王子市立第十小学校』まで約1,100m(徒歩約14分)
中学校『八王子市立第一中学校』まで約1,500m(徒歩約19分)
物件詳細DETAIL
建物構造 |
木造 |
間取詳細 |
(1F)S5.4、(1F)洋6、(2F)LDK18.5、(3F)洋4.4、(3F)洋6 |
|---|---|---|---|
建ぺい率 |
60% |
容積率 |
200% |
地目 |
宅地 |
用途地域 |
準工業地域 |
取引態様 |
仲介 |
私道面積 |
- |
引渡時期 |
相談 |
土地権利 |
所有権 |
借地料 |
- |
借地期間 |
- |
セットバック |
建築確認番号 |
第2025SBC-確01230Y号 |
|
接道 |
東 4m(幅員) 公道 4m(接面)
南西 4m(幅員) 公道 5.6m(接面)
南東 4m(幅員) 公道 5.7m(接面) |
諸費用 |
購入価格の8%程度(初期費用) - |
周辺環境 |
すぎい小児科クリニックまで 徒歩5分 327m |
学区 |
第十小学校 1,100m
第一中学校 1,500m |
特色/設備 |
地盤20年保証、建物10年保証、フラット35S対応、システムキッチン、カウンターキッチン、パントリー、独立洗面台、室内洗濯機置場、リビングイン階段、LDK15帖以上、フローリング、クローゼット、シューズボックス、廊下収納、バルコニー、駐車場、角地、南道路、公営水道、公共本下水、都市ガス、司法書士売主指定、土地家屋調査士売主指定 |
||
情報更新日 |
2026年02月14日 |
次回更新予定日 |
2026年02月15日 |
取引条件有効期限 |
2026年02月21日 |
※掲載されている物件データが現状と異なる場合は現状を優先します。
周辺地図MAP
ローンシミュレーション
LOAN SIMULATION
- 物件の価格
- 4,190万円
- 月々の返済額
- 円
- 年間の返済額
- 円
- 返済総額
- 円
- 利息合計
- 円
万円
%
年
※毎回の返済額が開始から終了まで均等となる「元利均等返済」で算出しています。
※金利は期間中固定となる固定金利を採用しています。
※月々の返済額は小数点以下を繰り上げしています。
※シミュレーションでの結果は、あくまでも目安で、概算になります。実際にローン契約をする際は、詳細を金融機関にご確認ください。
※実際のローン契約時には諸費用・税金(手数料や印紙税、保証料など)が別途かかりますので、契約の際にご確認ください。
株式会社Room’s BarCOMPANY
所在地 |
東京都八王子市子安町4-27-12 山上ビル103 |
||
|---|---|---|---|
免許番号 |
東京都知事免許(3)第93444号 |
||
会員 |
(公社)全日本不動産協会
(公社)不動産保証協会
|
||
電話番号 |
042-625-6446 |
FAX番号 |
042-625-6797 |
営業時間 |
10:00 ~18:00 |
定休日 |
水曜日 |

