価格 |
999万円 |
||
|---|---|---|---|
間取 |
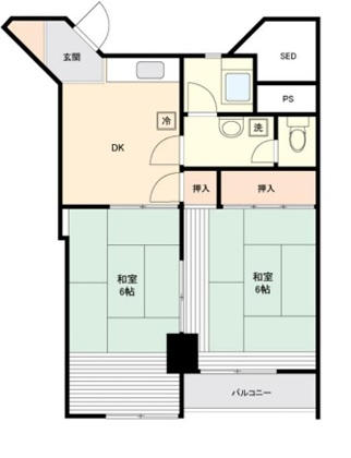
2DK |
築年月 |
1974/11(築51年) |
専有面積 |
53.69m²(16.24坪) |
総戸数 |
55戸 |
所在階 |
2階 |
建物階数 |
地上11階 地下1階建 |
所在地 |
八王子市南町 |
||
交通 |
中央線八王子駅まで 徒歩9分
京王線京王八王子駅まで 徒歩13分
横浜線八王子駅まで 徒歩9分 |
お電話でのお問い合わせ
物件番号:4062
お電話でお問い合わせの際は、物件番号をお伝えください。
042-625-6446
営業時間:10:00 ~18:00
定休日:水曜日
ポイント
POINT
【八王子市南町 八王子ローヤルマンション 2DK】
【セールスポイント】
☆事務所使用も可
☆平成27年耐震補強工事実施
☆本地は八王子市洪水ハザードマップの浸水想定区域に指定されていません
【ウィークポイント】
★東側接道道路の交通量が多く車両走行音など聞こえる場合がありますのでご内見時にお確かめください
【周辺環境】
コンビニ『セブンイレブン八王子八日町店』まで約120m(徒歩約2分)
ディスカウントストア『ドン・キホーテ八王子駅前店』まで約400m(徒歩約5分)
スーパー『肉のハナマサ八王子店』まで約350m(徒歩約5分)
幼稚園『八王子幼稚園』まで約450m(徒歩約6分)
保育園『まや保育園』まで約240m(徒歩約3分)
小学校『八王子市立第三小学校』まで約400m(徒歩約5分)
中学校『八王子市立第六中学校』まで約720m(徒歩約9分)
【セールスポイント】
☆事務所使用も可
☆平成27年耐震補強工事実施
☆本地は八王子市洪水ハザードマップの浸水想定区域に指定されていません
【ウィークポイント】
★東側接道道路の交通量が多く車両走行音など聞こえる場合がありますのでご内見時にお確かめください
【周辺環境】
コンビニ『セブンイレブン八王子八日町店』まで約120m(徒歩約2分)
ディスカウントストア『ドン・キホーテ八王子駅前店』まで約400m(徒歩約5分)
スーパー『肉のハナマサ八王子店』まで約350m(徒歩約5分)
幼稚園『八王子幼稚園』まで約450m(徒歩約6分)
保育園『まや保育園』まで約240m(徒歩約3分)
小学校『八王子市立第三小学校』まで約400m(徒歩約5分)
中学校『八王子市立第六中学校』まで約720m(徒歩約9分)
物件詳細DETAIL
建物構造 |
鉄骨鉄筋コンクリート造 |
間取詳細 |
(2F)和6、(2F)和6、(2F)DK |
|---|---|---|---|
土地権利 |
所有権 |
用途地域 |
商業地域 |
取引態様 |
仲介 |
バルコニ面積 |
2.97m² |
駐車場 |
無 |
駐車場月額 |
- |
管理組合 |
管理形態 |
自主管理 |
|
管理会社 |
管理人状況 |
||
管理費 |
9,900円 |
修繕積立費 |
4,700円 |
引渡時期 |
相談 |
諸費用 |
購入価格の8%程度(初期費用) - |
周辺環境 |
福原内科クリニックまで 徒歩5分 400m |
学区 |
第三小学校 400m
第六中学校 720m |
特色/設備 |
エレベータ、オートロック、二階以上、全居室6帖以上、独立洗面台、室内洗濯機置場、和室、押入れ、バルコニー、、都市ガス、司法書士売主指定 |
||
情報更新日 |
2025年12月27日 |
次回更新予定日 |
2026年01月04日 |
取引条件有効期限 |
2026年01月03日 |
※掲載されている物件データが現状と異なる場合は現状を優先します。
周辺地図MAP
株式会社Room’s BarCOMPANY
所在地 |
東京都八王子市子安町4-27-12 山上ビル103 |
||
|---|---|---|---|
免許番号 |
東京都知事免許(3)第93444号 |
||
会員 |
(公社)全日本不動産協会
(公社)不動産保証協会
|
||
電話番号 |
042-625-6446 |
FAX番号 |
042-625-6797 |
営業時間 |
10:00 ~18:00 |
定休日 |
水曜日 |

