物件番号 | Bm3826 | |||||||||||||||||
種目 | 中古マンション | 価格 | ![]() |
|||||||||||||||
交通 | 八王子駅まで 徒歩5分 | 所在地 | 八王子市横山町 | |||||||||||||||
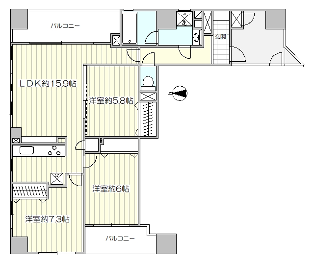
専有面積 | 79.11m2 ( 23.93坪 ) | 間取 | 3LDK | |||||||||||||||
総戸数 | 44戸 | 階/階建 | 8階/地上13階建 | |||||||||||||||
管理費 | 18,200円 | 修繕費 | 19,800円 | |||||||||||||||
駐車場 | 空有 | 駐車場月額 | 10,000円 | |||||||||||||||
構造 | 鉄筋コンクリート造 | 管理会社 | ||||||||||||||||
バルコニ方向 | 東 | バルコニ面積 | 12.78m2 | |||||||||||||||
築年月 | H13/05 | 引渡時期 | 即時 | |||||||||||||||
管理形態 | 全部委託 | 管理会社 | ||||||||||||||||
取引態様 | 仲介 | 諸費用 | ||||||||||||||||
学区(時間) | 小学校区:第一小学校 400m(5分) 中学校区:第五中学校 750m(10分) |
小児科 | 京王八王子クリニックまで 徒歩6分 450m | |||||||||||||||
特色 | 室内リフォームマンション(2025年5月末完了)、クロス張替(全面)、フローリング張替(LDK・洋室)、フロアタイル張替(ストーンタイル玄関・洗面・トイレ)、システムキッチン(新規)、浴室(新規)、洗面台(新規)、洗濯パン(新規)、トイレ(新規)、建具(新規)、照明(新規)、ハウスクリーニング、アフターサービス保証付、新耐震基準マンション、エレベータ、オートロック、角部屋、二階以上、LDK15帖以上、シューズボックス、追い焚き機能、浴室換気乾燥機、ウォシュレット、独立洗面台、室内洗濯機置場、ガスキッチン、食器洗浄乾燥機、オールフローリング、クローゼット、エアコン(3基新規)、宅配ボックス、駐車場(空あり:月額費用10,000円)、自転車駐輪場(空あり:費用無料:1住戸1区画)、都市ガス、司法書士売主指定 | |||||||||||||||||
Webコメント | 【八王子市横山町 リッツタワー八王子 3LDK】 【セールスポイント】 室内リフォーム済み(2025年5月末完了) ☆地震力を抑制する免震構造マンション ☆八王子駅から平坦な大通りで徒歩5分の駅近マンションです ☆本地は八王子市洪水ハザードマップの浸水想定区域に指定されていません 【ウィークポイント】 ★敷地南側が国道20号に接していますので車両走行音などの感じはご内見時にお確かめください 【周辺環境】 コンビニ『ローソン八王子横山町店』約170m(徒歩約2分) ディスカウントストア『ドン・キホーテ八王子駅前店』まで約350m(徒歩約5分) スーパー『イオンフードスタイル八王子店』約78m(徒歩約1分) 幼稚園『本町幼稚園』約700m(徒歩約9分) 保育園『船森保育園』約350m(徒歩約5分) 小学校『八王子市立第一小学校』約400m(徒歩約5分) 中学校『八王子市立第五中学校』約750m(徒歩約10分) |
|||||||||||||||||
取引条件有効期限 | 令和07年10月23日 | |||||||||||||||||
詳細 |
![]() ![]() 外観 ![]() 外観 ![]() 外観 ![]() 駐車場 ![]() エントランス |
|||||||||||||||||
ローンを組むにあたり、月々の返済額をシミュレーションします。
|
||||||||||||||||||
地図 |
地図を右クリックでルート検索が可能です。
|
|||||||||||||||||
位置情報に関するご注意:現在位置情報は精査中の為、正確ではない場合があります。あくまで参考程度の情報となります。 | ||||||||||||||||||
掲載されている物件データが現況と異なる場合は現況を優先します。 |