284:GRAFARE八王子台町6期
| 価格 | 4,080万円 ~ 4,580万円 |
|---|---|
| 所在地 | 八王子市台町3丁目 |
| 交通 | 中央線 西八王子駅まで 徒歩14分 |
| 小児科 | 富士森内科クリニックまで 徒歩6分 400m |
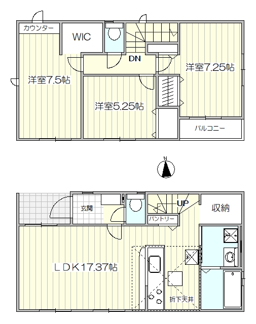
| 間取 | 3LDK |
| 建物構造 | 木造 |
| 築年月 | 2026/01 |
| 最多価格帯 | 4,500万円台 (1戸) |
|---|---|
| 販売戸数 | 1 |
| 総戸数 | 2戸 |
| 建物面積 | 90.04m2 ~ 101.85m2 |
| 土地面積 | 87.55m2 ~ 88.04m2 |
| 建ぺい率 | 60% |
| 容積率 | 200% |
| 用途地域 | 第一種中高層住居専用地域 |
| 地目 | 宅地 |
|---|---|
| 国土法届出 | |
| 都市計画 | 市街化区域 |
| 建築確認番号 | TKK確済25-372号 |
| 取引態様 | 仲介 |
| 土地権利 | 所有権 |
コメント
【八王子市台町3丁目 新築戸建】
【セールスポイント】
☆次世代につなげるZEH水準仕様・太陽光パネル設置物件
☆地盤20年保証・建物最長35年保証
☆住宅性能表示制度において7項目最高等級取得予定
☆本地は八王子市洪水ハザードマップで浸水想定区域に指定されていません
【チェックポイント】
★最寄り駅から本地までに登り坂のルートがありますので電動アシスト自転車などがあると便利です
【周辺環境】
コンビニ『セブンイレブン八王子富士森公園北店』まで約110m(徒歩約2分)
ドラッグストア『クリエイトS・D八王子台町店』まで約270m(徒歩約4分)
スーパー『スーパーアルプス台町店』まで約170m(徒歩約3分)
保育園『八王子ふたば保育園』まで約570m(徒歩約8分)
小学校『八王子市立第七小学校』まで約560m(徒歩約7分)
中学校『八王子市立第七中学校』まで約720m(徒歩約9分)
物件詳細ページ
※掲載されている物件データが現状と異なる場合は現状を優先します。
周辺地図
位置情報に関するご注意:現在位置情報は精査中の為、正確ではない場合があります。あくまで参考程度の情報となります。





