八王子市長房町

価格 4,499万円

1/4

物件番号「3951」をお伝えください。

電話でお問合せ LINEでお問合せ

物件情報

価格 4,499万円
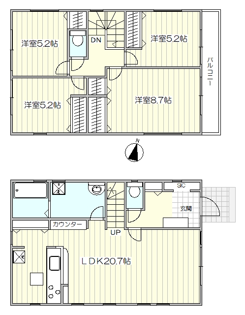
間取 4LDK
間取詳細 (1F)LDK20.7、(2F)洋5.2、(2F)洋5.2、(2F)洋5.2、(2F)洋8.7
所在地
八王子市長房町 地図
学区 長房小学校 260m/長房中学校 1,200m
交通 中央線 西八王子駅まで 徒歩19分
種目 新築戸建
土地面積 141.51m²
建物面積 107.64m²
建ぺい率 40%
容積率 80%
建物構造 木造
地目 宅地
土地権利 所有権
借地料 -
用途地域 第一種低層住居専用地域
取引態様 仲介
築年月 2026/01
引渡時期 相談
諸費用 購入価格の8%程度(初期費用) -
接道 東 16m(幅員) 公道 位置指定無 6.2m(接面)
セットバック
特色 地盤10年保証、建物10年保証、フラット35S対応、システムキッチン、カウンターキッチン、浄水器一体シャワー水栓、食器洗浄乾燥機、TVモニターホン、床下収納、パントリー、ウォシュレット、独立洗面台、室内洗濯機置場、浴室暖房乾燥機、1坪サイズバス、追い焚き機能、24時間換気システム、リビングイン階段、LDK15帖以上、フローリング、クローゼット、シューズボックス、シューズインクローゼット、廊下収納、雨戸シャッター、バルコニー、駐車場、駐車スペース2台可、公営水道、公共本下水、都市ガス、司法書士売主指定、土地家屋調査士売主指定
物件について 【八王子市長房町 新築戸建 4LDK】

【セールスポイント】
☆建物は売主オリジナルプラン・安心の売主自社施工
☆開発現場の整った区画でゆとりある4LDKの間取りです
☆ZEH水準省エネ住宅

【チェックポイント】
★本地の一部と前面道路が八王子市洪水ハザードマップで0.5m未満浸水想定区域に指定されています
★本地と接道道路に高低差があります

【周辺環境】
コンビニ『ファミリーマート八王子並木町店』まで約750m(徒歩約11分)
ドラッグストア『クリエイトS・Dコピオ長房店』まで約500m(徒歩約7分)
スーパー『スーパーアルプス長房店』まで約500m(徒歩約7分)
保育園『長房みなみ保育園』まで約360m(徒歩約5分)
小学校『八王子市立長房小学校』まで約260m(徒歩約4分)
中学校『八王子市立長房中学校』まで約1,200m(徒歩約15分)
※掲載されている物件データが現状と異なる場合は現状を優先します。

更新情報

情報更新日 2025年10月14日
次回更新予定日 2025年10月17日
取引条件有効期限 2025年10月22日

ローンシミュレーション

物件価格 4,499万円
頭金 万円
金利
借入期間
再計算
月々の返済額
年間の返済額
返済総額
利息合計
※ 毎回の返済額が開始から終了まで均等となる「元利均等返済」で算出しています。
※ 金利は期間中固定となる固定金利を採用しています。
※ 月々の返済額は小数点以下を繰り上げしております
※ シミュレーションでの結果は、あくまでも目安で、概算になります。実際にローン契約をする際は、詳細を金融機関にご確認ください。
※ 実際のローン契約時には諸費用・税金(手数料や印紙税、保証料など)が別途かかりますので、契約の際にご確認ください。

物件番号「3951」をお伝えください。

電話でお問合せ LINEでお問合せ
電話 メール LINE
メールでお問合せ
OK