八王子市横山町

価格 4,999万円

1/6

物件番号「3826」をお伝えください。

電話でお問合せ LINEでお問合せ

物件情報

種目 中古マンション
価格 4,999万円
物件名 リッツタワー八王子
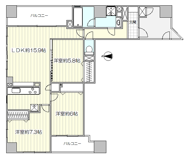
間取 3LDK
間取詳細 (8F)洋5.8、(8F)洋6、(8F)洋7.3、(8F)LDK15.9
総戸数 44戸
階/階建 8階/地上13階建
所在地
八王子市横山町 地図
学区 第一小学校 400m/第五中学校 750m
交通 中央線 八王子駅まで 徒歩5分
専有面積 79.11m²
バルコニ面積 12.78m²
バルコニ方向
建物構造 鉄筋コンクリート造
駐車場 空有
駐車場料金 10,000円
修繕積立費 19,800円
管理費 18,200円
管理会社
管理形態 全部委託
築年月 2001/05
引渡時期 即時
諸費用
取引態様 仲介
特色 室内リフォームマンション(2025年5月末完了)、クロス張替(全面)、フローリング張替(LDK・洋室)、フロアタイル張替(ストーンタイル玄関・洗面・トイレ)、システムキッチン(新規)、浴室(新規)、洗面台(新規)、洗濯パン(新規)、トイレ(新規)、建具(新規)、照明(新規)、ハウスクリーニング、アフターサービス保証付、新耐震基準マンション、エレベータ、オートロック、角部屋、二階以上、LDK15帖以上、シューズボックス、追い焚き機能、浴室換気乾燥機、ウォシュレット、独立洗面台、室内洗濯機置場、ガスキッチン、食器洗浄乾燥機、オールフローリング、クローゼット、エアコン(3基新規)、宅配ボックス、駐車場(空あり:月額費用10,000円)、自転車駐輪場(空あり:費用無料:1住戸1区画)、都市ガス、司法書士売主指定
物件について 【八王子市横山町 リッツタワー八王子 3LDK】

【セールスポイント】
室内リフォーム済み(2025年5月末完了)
☆地震力を抑制する免震構造マンション
☆八王子駅から平坦な大通りで徒歩5分の駅近マンションです
☆本地は八王子市洪水ハザードマップの浸水想定区域に指定されていません

【ウィークポイント】
★敷地南側が国道20号に接していますので車両走行音などの感じはご内見時にお確かめください

【周辺環境】
コンビニ『ローソン八王子横山町店』約170m(徒歩約2分)
ディスカウントストア『ドン・キホーテ八王子駅前店』まで約350m(徒歩約5分)
スーパー『イオンフードスタイル八王子店』約78m(徒歩約1分)
幼稚園『本町幼稚園』約700m(徒歩約9分)
保育園『船森保育園』約350m(徒歩約5分)
小学校『八王子市立第一小学校』約400m(徒歩約5分)
中学校『八王子市立第五中学校』約750m(徒歩約10分)
※掲載されている物件データが現状と異なる場合は現状を優先します。

更新情報

情報更新日 2025年10月14日
次回更新予定日 2025年10月17日
取引条件有効期限 2025年10月22日

ローンシミュレーション

物件価格 4,999万円
頭金 万円
金利
借入期間
再計算
月々の返済額
年間の返済額
返済総額
利息合計
※ 毎回の返済額が開始から終了まで均等となる「元利均等返済」で算出しています。
※ 金利は期間中固定となる固定金利を採用しています。
※ 月々の返済額は小数点以下を繰り上げしております
※ シミュレーションでの結果は、あくまでも目安で、概算になります。実際にローン契約をする際は、詳細を金融機関にご確認ください。
※ 実際のローン契約時には諸費用・税金(手数料や印紙税、保証料など)が別途かかりますので、契約の際にご確認ください。

物件番号「3826」をお伝えください。

電話でお問合せ LINEでお問合せ
電話 メール LINE
メールでお問合せ
OK