新築戸建
[価格] 4,080万円
所在地 沿線/駅
バス徒歩
構造
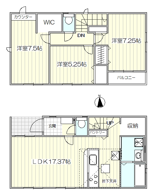
間取
土地面積
建物面積
築年月
引渡時期
八王子市台町3丁目 中央線/西八王子駅
徒歩14分
木造
3LDK
88.04m²
90.04m²
2026/01
相談
物件番号 4033
交通 中央線 西八王子駅まで 徒歩14分 学区 第七小学校 560m
第七中学校 720m
建ぺい率 60% 容積率 200%
地目 宅地 用途地域 第一種中高層住居専用地域
間取詳細 (1F)LDK17.37、(2F)洋5.25、(2F)洋7.5、(2F)洋7.25 取引態様 仲介
土地権利 所有権 借地料 -
諸費用 購入価格の8%程度(初期費用) - 私道面積 -
接道 北 6m(幅員) 公道 位置指定無 2.95m(接面) セットバック
特色 地盤20年保証、建物最長35年保証、住宅性能表示制度対応住宅、設計性能評価書、建設性能評価書、外壁サイディング貼り、耐震住宅(耐震等級3取得)、システムキッチン、カウンターキッチン、床下収納、パントリー、温水洗浄付便座、独立洗面台、室内洗濯機置場、浴室暖房乾燥機、1坪サイズバス、追い焚き機能、リビングイン階段、LDK15帖以上、フローリング、クローゼット、ウォークインクローゼット、シューズボックス、全居室ペアガラス、バルコニー、駐車場、公営水道、公共本下水、都市ガス、司法書士売主指定、土地家屋調査士売主指定
物件について 【八王子市台町3丁目 新築戸建 3LDK】

【セールスポイント】
☆次世代につなげるZEH水準仕様・太陽光パネル設置物件
☆地盤20年保証・建物最長35年保証
☆住宅性能表示制度において7項目最高等級取得予定
☆本地は八王子市洪水ハザードマップで浸水想定区域に指定されていません

【チェックポイント】
★最寄り駅から本地までに登り坂のルートがありますので電動アシスト自転車などがあると便利です

【周辺環境】
コンビニ『セブンイレブン八王子富士森公園北店』まで約110m(徒歩約2分)
ドラッグストア『クリエイトS・D八王子台町店』まで約270m(徒歩約4分)
スーパー『スーパーアルプス台町店』まで約170m(徒歩約3分)
保育園『八王子ふたば保育園』まで約570m(徒歩約8分)
小学校『八王子市立第七小学校』まで約560m(徒歩約7分)
中学校『八王子市立第七中学校』まで約720m(徒歩約9分)
取引条件有効期限 2025年10月29日
地図を右クリックでルート検索が可能です。
移動方法: 徒歩
ローンを組むにあたり、月々の返済額をシミュレーションします。
物件価格
4,080万円
頭金
万円
金利
借入期間
月々の返済額
年間の返済額
返済総額
利息合計
※ 毎回の返済額が開始から終了まで均等となる「元利均等返済」で算出しています。
※ 金利は期間中固定となる固定金利を採用しています。
※ 月々の返済額は小数点以下を繰り上げしております
※ シミュレーションでの結果は、あくまでも目安で、概算になります。実際にローン契約をする際は、詳細を金融機関にご確認ください。
※ 実際のローン契約時には諸費用・税金(手数料や印紙税、保証料など)が別途かかりますので、契約の際にご確認ください。

お電話でのお問い合わせ お問い合わせの際は物件番号名をお伝え下さい

  • 株式会社 Room’s Bar
  • TEL:042-625-6446
  • FAX:042-625-6797